搭建木屋
搭建木屋如同做傢俬一樣,只不過是體積較大而矣,你懂得做傢俬,便可搭屋,本人年幼家貧,居於鄉郊,小學時因好養鴿而搭建白鴿屋,累積了少許搭屋經驗,至十四歲時,因所居木屋狹小,一家五口只居於140呎的木屋,需要擴建,擴建工程,有好大部分都是由本人負責,那時本人只是一個小孩子,完全無學過任何裝修技術,無任何電動工具,只有簡單的木鎚與手鋸,尚可搭建一間堅固的木屋,你話搭屋有何難? 今日本人技術增加了,能搭建的木屋當然會更加好,所以現在介紹的建屋方法是更佳的,亦會利用電動工具,雖然現在大家已沒有機會搭木屋了,因沒有地,搭寮屋是會給政府拆的,若有地,沒錢也可建屋,找個建築商夾份起間丁屋便可,不用出錢,起好後你佔兩層,他佔一層。雖然大家都不會有機會起屋,但若有興趣,看看本頁,也可知多一點點。與裝修一樣,建屋不難,夠膽便得,最好兩個人一起做,方便釘裝時扶實建材,其實大部分工序一個人做都得,慢些而矣。
1. 設計及繪圖
萬事起頭難,最難是設計及繪圖,現在幫你做了,將會建造的是一所約365平方呎的木屋,三房一廰,有厠所、半開放式廚房及閣樓儲物室,起屋先決定排污方法,若遠離馬路,又有空地,建議在屋後建較大的化糞池,若慳住排水,化糞池不滿溢,是可以長住久安的,若空地不多,又近馬路,可在屋前建一小型化糞池,定期找渠務公司用吸糞車駁長喉吸走污物,化糞池之表面空地可建花園美化。
為防買不到夠長的木方,設計是以11呎長的木方為依歸(最少11呎,否則要駁很多枝屋頂橫樑,很麻煩),但如此做則閣樓樓底很低,只能儲物,不能住人,若可以,應購買12呎長的木方,買到14呎以上更佳,那麼閣樓樓底便夠高,可居住或作工作室,若不嫌麻煩,也可用萬能角鐵將木方駁長,也可造出夠長的支柱,建造兩層高的屋子。正面圖中的支柱長度有兩個數字,藍色的代表使用11呎,紅色的代表12呎長木方。所有數字以英吋計。


2. 買料
|
名稱 |
材料 |
大小(長闊高) |
數量 |
備註 |
1 |
正樑 |
木方 |
12呎x4吋x3吋 |
2 |
需要駁長 |
2 |
前屋柱 |
木方 |
12呎x3吋丁方 |
4 |
用一枝駁長其他的 |
3 |
後屋柱 |
木方 |
12呎x3吋丁方 |
4 |
用一枝駁長其他的 |
4 |
側屋柱 |
木方 |
12呎x3吋丁方 |
10 |
若夠長不用駁 |
5 |
門柱 |
木方 |
12呎x3吋丁方 |
2 |
需要駁長 |
6 |
屋頂橫樑 |
木方 |
12呎x2吋丁方 |
14 |
最少長11呎 |
7 |
屋頂直樑 |
木方 |
12呎x2吋丁方 |
28 |
|
8 |
上主柱 |
木方 |
12呎x3吋丁方 |
2 |
|
9 |
下主柱 |
木方 |
12呎x2吋丁方 |
4 |
|
10 |
窗桁 |
木方 |
12呎x3吋丁方 |
4 |
|
11 |
外牆板 |
四分板 /石膏板 |
4呎x8呎 |
26 |
|
12 |
內牆板 |
四分板 |
4呎x8呎 |
26 |
|
13 |
閣樓地台板 |
六分板 |
4呎x8呎 |
12 |
|
14 |
天花板 |
二分板 |
4呎x8呎 |
12 |
|
15 |
天花桁(鑲角鐵) |
木方 |
吋半丁方 |
200呎 |
|
16 |
下主柱頂板 |
六分板 |
40吋x32吋 |
1 |
|
17 |
閣樓地台角鐵 |
吋半萬能角鐵 |
|
290呎 |
|
18 |
接駁支柱角鐵 |
吋半萬能角鐵 |
|
10呎 |
|
19 |
屋頂面板 |
四分板 |
4呎x8呎 |
18 |
|
20 |
PVC膠瓦 |
|
|
500方呎 |
|
21 |
燈喉1吋 |
1吋 |
|
100呎 |
|
22 |
燈喉六分 |
六分 |
|
30呎 |
|
23 |
英泥 |
|
|
8包 |
|
24 |
沙 |
|
|
25包 |
|
25 |
樓梯側板 |
六分板 |
4呎x8呎 |
2 |
|
26 |
樓梯踏板 |
六分板 |
4呎x8呎 |
1 |
|
除以上可計算數量外,所有木板都應多買兩塊作額外之用。
3. 開料
工欲善其事,必先利其器,開料缺少工具,很難施工,故第一件事是先造張鋸床,按此看鋸床製作方法。因建屋用料極多,所以不必預先畫圖計尺寸,用到時才開料便可,為減省工序,本屋的設計為盡量用原塊的四八板,許多時是無需開料的。
4. 接駁樑柱
若能買到12呎長的3吋方,側屋柱是無須接駁的,這可減少工序,但前後屋柱仍是需接駁的,接駁支柱用1呎長的吋半萬能角鐵,萬能角鐵已預先鑽孔,無須再鑽孔,所以很好用,但缺點是較薄身,承托力不足。因為要用好多枝萬能角鐵,要很多切割工序,沒有工具,自已好難切割,最好買料時叫五金舖幫你切割好,看設計圖便可計算出每枝尺寸及數量,又或者用鋸床切割,換隻鋸鐵的7吋咭碟(砂輪片)便可。接駁時支柱的四面都圍上萬能角鐵,用平頭螺絲釘固定,但如此角鐵及螺絲頭便會突起,阻礙及後的牆身板安裝,解決方法是在接口位削走分半厚的木材,沒有鋸床的協助,是做不到的,有鋸床則很容易。

在種柱前先要在柱頂鑽孔,屋頂的橫樑也是,以後便無須在高空鑽孔,安裝屋頂樑架時便方便快捷好多。將接駁好的屋柱依設計圖紙位置排列在地,擺放屋前橫樑於屋柱上(設定位置),畫上記號,在記號上鑽個直徑與螺絲同大的孔,將會採用過山螺絲(用絲母的),因前後屋橫樑是對稱的,所以屋後參照屋前尺寸鑽孔便可,只不過屋前的橫樑多鑽一個門柱的孔。至於其他的10枝橫樑,將來接駁時是沒有門柱的,只須在接駁側屋柱的位置鑽一個洞便可,鑽了一枝做樣辦,其他的跟著位置鑽孔便可。所有屋柱也同樣要鑽孔,按圖紙所計算出的位置,在離柱頂兩吋半鑽孔便可。
防蟲處理: 白蟻會飳蝕柱腳,可將柱腳表面燒焦成炭,炭味苦白蟻不食,如此便可防止白蟻從柱腳入侵,做法是用一個打邊爐的氣體爐將入地部份的柱腳表面燒成焦炭,注意只是表面。
5. 種柱
- 平整地盤,把1呎長尖木或尖鐵枝打入屋子四角的泥地作支柱,然後圍上繩子成一井字形,繩子離地約半呎,井字要絶對方正,利用水平儀或平水呎校正繩子的平水,此後這繩子便是種柱深度及位置的依據。
- 在地上畫出屋柱的所在位置,依各柱位掘出一面積約一方呎及2呎深的泥洞,開一包英泥及三包沙,用鏟撈勻,無須加水,放置一傍備用。
- 用鋸床開出約二十塊約四呎乘半呎的二分板,用來作臨時固定屋柱之用。
- 利用井字繩作基準,向下定出柱腳入泥洞的應有深度,例如繩子離地六吋,屋柱該入地21吋,則柱底該距離繩子為21加6吋,等如27吋。
- 將所有屋柱平排在地,柱腳對齊,從柱腳向上度出27吋,一次過畫墨線,以後種柱時柱子的深度為墨線貼齊繩子便可,排列時留意屋柱的轉面,柱頂鑲橫桁洞孔的方向須正確。
- 鄰近的兩條屋柱為一對,柱腳齊平,相距四呎(該依實際設計距離),在距柱腳四呎高處釘上二分厚的臨時固定板,柱子構成像一個英文字H的形狀。
- 將H形柱對插入泥洞,用水平儀/平水呎校正垂直,倒入兩鏟英泥沙,約覆蓋柱腳半呎深,用木柱樁實,此時應略為穩固,若不,像下營繩般用繩子加固。
- 繼續種餘下屋柱,將相鄰的H形柱子用二分板連起,隨著種柱的數量增多,柱子會越加穩固,最後種完所有屋柱,柱子會圍成一個四方形,此時會更為穩固。
- 在每個柱洞都倒入少許水,弄濕英泥沙。
- 開多兩包英泥及六包沙,加水攪拌成混凝土漿(英泥與沙的比例為1:3),將土漿灌進泥洞至全滿,待一天乾硬後屋柱便會很穩固。
6. 釘門桁及窗桁
依設計圖,鋸出合適長度的3吋方,在設定位置釘上木方作窗桁(楣)。

7. 釘外牆板
拆除臨時固定板,外牆釘四分厚夾板/石膏板,只需釘至閣樓地板高度,以上的太高不方便施工,以後才釘。
8. 種下主柱
下主柱共有四枝(2吋方)。利用外牆板作下釘支點,量出下主柱對應位置,在牆腳落定位釘,在對面牆同樣下釘,縳繩連接兩釘,縱橫拉繩,便可構成一中央小井字形,井的四角便是四枝主柱位置,照前面方法,掘地種柱,種完釘六分柱面板,校正面板平水才灌英泥漿。
9. 安裝燈喉
定出間房位置及在泥地打尖木作記號,再定出插座及燈掣位置,掘2吋深地坑安放燈喉,再在關鍵位置鋪小塊英泥固定,燈喉內預穿尼龍繩。

10. 釘內牆板
- 先釘前及後內牆板,後釘側內牆板,至天花高便可。
- 釘好前及後內牆板後,在屋的四角釘三吋闊(與柱同寬)的六分板長條作內牆板支點,然後釘側內牆板。
- 釘板前在插座位及燈掣位開孔,用拎梳開圓孔。
11. 安裝閣樓桁架
- 依設計圖把角鐵鑲上吋半木方製成桁架構件。
- 在桁架底部預先釘一塊二分板。

- 在屋子四面的內壁頂部(離地7呎10吋半)釘一圈萬能角鐵(用吋半螺絲釘鑲在屋柱上),看下圖。
- 依設計圖鋪設桁架。

- 在(空)角鐵上裝上吋半圍邊木方。

12. 安裝閣樓地台板
在桁架上安裝六分板作地台板,依下圖開料:

依下圖指示上螺絲:

13. 建造樓梯
建造樓梯的考慮因素:
- 因為閣樓樓底矮,上閣樓的入口必須在屋子的中間,否則撞頭或上唔到。
- 為節省樓梯所佔空間,每級樓梯要做高些,減少級數,從而減少佔地。
- 地板的開口處必須為柱位或桁架,令地板邊緣有靠山,有著力點,開口才夠穩固。
- 梯級必須穩固。
- 施工必須簡易,用二塊四八板便可建成,減少接駁。
- 樓梯底用作電掣房及士多房。

14. 安裝上主柱
樓梯做好後,可輕鬆上閣樓,高空工作變得容易,可以開始建造屋頂,首先建造2根上主柱,這種雙層多主柱設計,可免去樓下的中央主柱,不會阻礙通道,四根下主柱採用較幼細的木方,間房時作為支點,並作為間壁的一部份隱藏掉。因為屋樑長24呎,沒有這麼長的木方的,必須接駁,而且太長中間必須加支柱支持,採用雙主柱的設計可將重量分佈至樓下的四根下主柱,承托力更佳,亦可提供更多著力點給主樑,建造時很容易將柱豎立。

依下圖建造及豎立雙主柱。用螺絲釘固定在地板。
若想免去地下固定支柱的六分板,不致突起阻礙日後之鋪地板,可在釘裝此塊地板時不要下釘,只暫時放上,然後依前面種下主柱落地的方法,將二根三吋方換成四根二吋方,高5呎11吋(採用11呎側屋柱設計),或者高10呎(採用16呎側屋柱設計),照樣度尺拉繩定出四根主柱位置,垂直對應下面的四根主柱,在地板畫出柱腳周界位置,應該是四個邊長二吋的四方形,在每個四方形畫對角交义線,交界點便為柱腳的中心點,在中心點鑽一個小洞。取出整件地板反轉,在小洞上一口二吋螺絲釘,貫穿地板,釘頭上到盡,反轉地板放回原處,螺絲釘會突出地板。在四根二吋支柱底同樣畫對角交义線,定出中心點,鑽個約吋半深的小洞,孔徑要比螺絲釘略小。在柱底塗白膠漿,拿著柱子對正螺絲釘,插入並旋轉柱子,將螺絲釘鑲入柱子內,直至緊貼地板。種好四條柱後,在上面釘塊六分頂板固定,其後在六分板上再裝很短的三吋方雙主柱,方法像之前設計一樣,記得要在六分頂板上加裝一對萬能角鐵,角鐵先鑲在吋半方上,然後才種上雙主柱,這樣才夠力,可在吋半方上直接下螺絲釘。

15. 上主樑
主樑(正樑)長24呎,先在閣樓地台上施工,將2根各長12呎的3吋x 4吋方用萬能角鐵接駁。接駁後用木鑿在樑上開凹,預位給橫樑(木陣)。小心將主樑的每端逐級升高,可用一對木梯的梯橫作支點,兩端輪流升高一級,直至達到主柱的高度,才將主樑放上主柱的設定位置上,盡量減少對主樑中央的拗力,免致對接駁位做成傷害。放好後用長螺絲釘固定,在中央的上主柱收螺絲較容易,在六分板底部向上收螺絲便可,至於兩端的前後主柱,因主樑厚3吋,沒有這麼長的螺絲釘的,也不夠力上螺絲,解決方法是先鑽幾個吋半深的大洞,大至可將螺絲頭藏進內,這樣便可先將一段螺絲釘連釘頭埋進木內,減少接駁的距離,螺絲釘便夠長了,但這麽長及粗的螺絲釘,不易旋進,要用電鑽先開一細小導孔。若買到六吋鐵釘(現在無人用,應該買唔到),用六吋釘也可以,打六吋釘不容易,極易彎曲,解決方法也是用電鑽先開一細小導孔。。

16. 鋪屋頂樑架
若開料準確,施工順利,鋪設屋頂樑架會很容易,因為有了閣樓地板,屋頂變得不高,只用矮梯便可。將所有橫樑的一端擱在主樑上,順序排好,從屋前開始鋪設,用粗螺絲穿過支柱及橫樑(已預先鑽孔),上緊絲母便可,因為側柱頂很低,站著已可工作,一次過將所有橫樑與屋柱釘裝好,然後才用梯子站高釘裝主樑與橫樑,最好不要用鐵釘,用螺絲釘,除了螺絲釘較堅固外,因為主樑的中間懸空不受力,打釘時容易彈鎚,不易下釘,若用鐵釘,可用電鑽先開導孔。
橫樑鋪好後鋪直樑,要先畫墨線定位,直樑位置必須準確,方便下一個釘裝四分頂板的工序,同樣盡量採用螺絲釘以防彈鎚,採用菊花頭螺絲便可將釘頭藏進木內。17. 釘上層的內外牆板
先釘外牆板,安裝好燈喉及插座底箱,才釘內牆板,釘好後閣樓有了護欄,施工時會較安全。
18. 釘屋頂面板
從屋脊開始,由上向下鋪設四分面板,用鐵釘施工會快些,但屋頂容易被風吹走,宜採用螺絲釘,多出的板邊作屋簷用,留下最後的一塊板不要釘住,用作上屋頂的通道。現在有了屋頂,屋子初步成形。
19. 鋪設PVC膠瓦
從前屋頂多數鋪坑鐵,施工困難兼漏水,隔熱性能極差,屋子像焗爐。現在科技進步了,不鋪坑鐵改鋪樹脂瓦,漂亮得多。PVC膠瓦(合成樹脂瓦)是最常用的建築材料。PVC是一種是乙烯基的聚合物質,中文名稱是聚錄乙烯,英文名為PolyVinylChloride。PVC容易染色,表面平整光滑而且色彩多變。對於彎曲和衝擊的抗性十分強。 由於分子結構穩定,所以使用十分長時間也不會老化。而且安裝的時候十分容易可以進行熔接和黏膠粘合。 價錢便宜而且重量輕,在隔熱、室內保溫、防止燃燒而且抵抗各類酸堿腐蝕上面均有十分出色的表現。
保溫隔熱性能優:合成樹脂瓦的導熱系數為 0.325w/m.k,大約是黏土瓦的的1/310,水泥瓦的1/5,0.5mm厚彩鋼瓦的1/200。因此,在不考慮加保溫層的情況下,合成樹脂瓦的隔熱保溫性能仍能達到最佳。
主瓦正鋪 |
斜鋪 |
顯示堵頭及收邊 |
屋脊 |
堵頭 |
固定膠瓦之配件1 |
固定膠瓦之螺絲 |
固定膠瓦之配件2 |
固定膠瓦之配件3 |
主瓦安裝時要根據當地風向,逆向安裝。搭接一個瓦波,兩側同時進行。
安裝正脊瓦時將第一張脊瓦截掉一段後再安裝。
正、斜脊瓦安裝搭接處應鋸齊,正、斜脊瓦安裝完畢後,再安裝三通瓦(三面方向的交接處)。
固定件為專用配件,每個牌子不同。固定時,先用電鑽鑽孔,孔徑要比螺絲大2㎜。
自攻螺絲建議選用直徑6.3㎜。

售賣樹脂瓦的商店:
- http://www.fswxwy.com/productview.asp?id=67
- http://b2b.hc360.com/supplyself/323726784.html
- http://b2b.hc360.com/supplyself/245269945.html
每平方米約一元人民幣
厚度:3.0mm 長度:按節距的倍數定做
顏色:棗紅、磚紅、灰色、墨綠色、藍色
波形:總寬:1050mm;有效寬度:960mm;波距:160mm;波高:30mm;節距:220mm
另類選擇: 玻纖瓦
若不選樹脂瓦,可鋪玻纖瓦。
http://www.qianyan.biz/sshow-48354561.html
玻纖瓦(又稱油氈瓦、瀝青瓦)是一種柔性瓦片,可自由裁剪,能成功覆蓋於不同形狀和不同基層的屋頂,可廣泛應用於錐形,弧形,球形等結構複雜的坡屋面。這類材料是柔性的,由玻璃纖維作增強胎基,以氧化瀝青或改性瀝青作塗蓋材料,上表面用各種粗顆粒彩砂作撒布料製作而成,以搭接方式鋪在屋面上,可以釘,可以粘,相比較粘土瓦、琉璃瓦等,重量很輕,瀝青瓦對屋面結構層的承重要求較低,施工也更加容易。
20. 外牆的防水及美化
外牆雖安裝了四分板,但不防水及防腐,兼且不美觀,還要加工。外牆裝飾有很多選擇,現只列舉一些:
- 塗外牆乳膠漆: 像一般石屎建築物般,塗外牆乳膠漆,但最好先塗一層防水膜打底,若想更美觀,可在木板駁口及釘口扇灰填平才塗漆。
- 塗磁漆: 磁漆防水性好,但外觀較死硬。
- 鋪鋅鐵片再塗磁漆: 防漏性能及耐用性較好,但很低級。
- 鋪文化石: 變身成石屋,最高級。文化石分天然及人造兩種,建議採用人造的,因較便宜及施工容易。
人造文化石是採用浮石、陶粒、矽鈣等材料經過專業加工精製而成的。採用高新技術把天然形成的每種石材的紋理、色澤,質感以人工的方法進行升級再現,效果極富原始、自然、古樸的韻味。高檔人造文化石具有環保節能、質地輕、色彩豐富、不黴、不燃、抗融凍性好、便於安裝等特點。




文化石的施工跟普通的牆壁施工是有很大區別的。若決定鋪文化石,應在建屋釘外壁時採用石膏板而非四分夾板,否則會增加了工序。
- 將牆面處理乾淨並做出粗糙的表面,如是塑膠質、木質等低吸水性光滑面,須鋪鐵絲網,批盪英泥,做出粗糙底面後才鋪貼。若外牆是石膏板則可直接鋪文化石。
- 採用425號以上的白水泥或普通水泥,開英泥時要加膠水,水泥:砂:801膠水的比例為1:2:0.05,也可用陶瓷黏接劑(請注意黏接劑使用說明)、玻璃膠、瓷磚膠、雲石膠黏貼。
- 黏貼前將岩石充分侵濕(若用英泥),在岩石底部中央塗抹黏接劑要堆起呈山形狀,如不慎大面積弄髒表面需及時用刷子清洗後使用。
- 先貼轉角(有L形轉角的)。充分按壓,使岩石周圍可看見黏接劑擠出(部分產品不需轉角)。
- 如施工需要,可對岩石進行切割來調整。
- 填縫隙時採用填縫劑,填縫劑可能與黏接劑不同,因為有可能用玻璃膠、瓷磚膠、雲石膠等黏貼,這時便要調配類似英泥的填縫劑,填縫時注意把握深淺,縫隙越深產品的立體效果越好。
- 填縫劑初凝後,用竹片等將多餘的填縫料除去,用沾水的毛刷修理縫隙表面,如不慎岩石表面黏有少量填縫劑或黏接劑,待其乾燥後,用刷子除去。更好。部分產品不須留縫。
- 鋪貼好之後,待產品和填縫劑完全乾燥後可噴塗防護劑(如防水膜)進行防護處理(可防水、防凍、抗紫外線、防酸等特點)。
購買文化石:
人造文化石的廠家有很多,以行業龍頭古猿人文化石為代表,其次有博鼇文化石、納唯朗文化石、 福美來文化石、千葉文化石、大紅馬文化石、大自然文化石、恒興古山文化石、古羅馬文化石、大紅棕文化石、唐之韻文化石、古羅馬文化石、潤谷文化石、承德紅山文化石、珞珂工坊的文化石、荊古文化石、雅斯文化石、紹興上品文化石等等但是在文化石的分類上大體上相似,一般有條石,麵包石,城牆石,風化石、鵝卵石、混合紋理石、仿古磚等。
門簷窗簷的裝設 :
門窗位置為擋雨,需裝門簷及窗簷,在門頂及窗頂釘上一條合適長度的二吋方便可,為求耐用,同樣要塗上一層防水膜。若外牆只是塗漆,不需額外處理,照塗便可。若外牆鋪文化石,簷面位置的石用黏接劑黏上便可,簷側及簷底位置除了用黏接劑外,宜在石上鑽孔收鑼絲釘加固,因為窗簷是木材,很易上鑼絲釘的。21. 鋪設英泥地台
- 先安放來水喉及排污喉,喉管口塞報紙。
- 地台鋪1吋厚英泥。
- 先在內壁打平水彈墨線,例如離地三吋處彈墨線,然後靠線向下圍屋貼一圈二吋闊的縐紋紙,用作英泥漿高度準則,亦用作防污處理,因為鋪英泥時是會弄污牆板的。
- 鋪英泥時由內向外(門口)鋪,免致踐踏盪好的英泥。
- 弄濕地面,將英泥漿倒落地,用鏟大致推平,然後用一條約長八呎的二吋方在漿面來回推刮,盪平漿面,有需要時用灰匙協助執平。
22. 訂造門窗
至此屋子已大致建好,可以度尺訂造門窗,訂造大門時連門框一起訂製,可同時訂製間房用的房門,窗門可訂造連窗框的鋁窗,訂製時記得做細一分以利鑲篏,安裝時若門/窗較開口細了,只需在框邊牆壁上幾口鑼絲釘,露出釘頭少許,頂住門/窗框,令其緊貼便可,緊貼度可用旋出旋入鑼絲調校。為求防水,安裝門/窗框時先塗上玻璃膠。
屋子建好,大功告成!
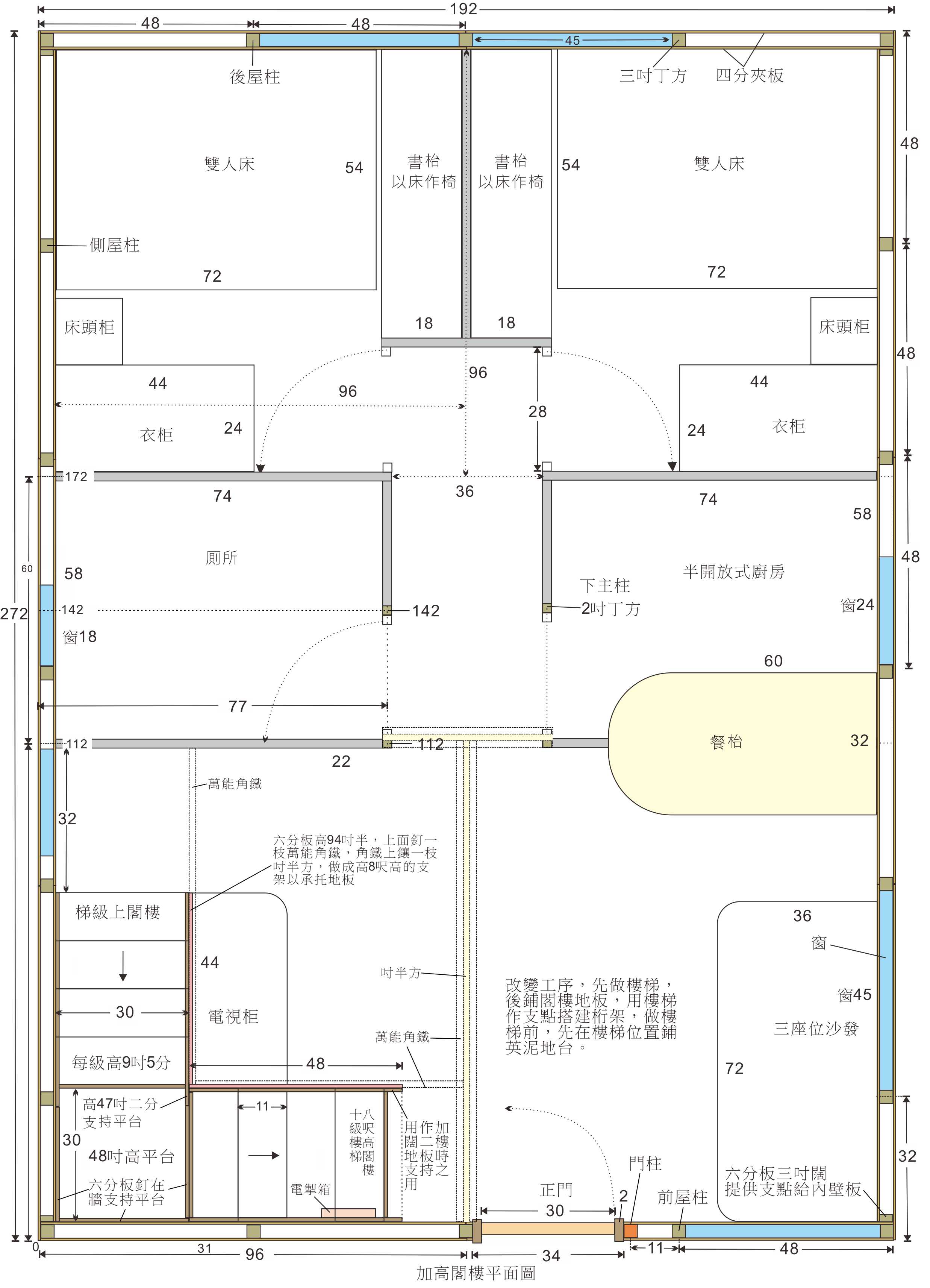
23. 加高閣樓成為雙層屋子
若想屋子更大,可加高閣樓,例如加高6呎,閣樓屋側樓底高7呎,成為兩層高的屋子,側屋柱需要長17呎(原先設計為11呎),功夫只是多少少,要接駁所有屋柱,當然若想好一點,閣樓也要開窗、間房、裝電製、厠所來去水喉等,這功夫會多很多,開窗、裝電製、來去水喉等必須先做,間房可待入伙後得閒先做也不遲。買料方面,三吋方屋柱買多10枝,四分板買多30件,六分板買多六件便可。其他材料,如燈喉等,輕巧易購,買多少少便可,若到時不夠,補購不難。屋子大了,下層設計可不用太擠迫,減少一間房,客廰大少許,騰出空間建造樓梯,因現在要經常上落,樓梯不能太斜,所以將每級高度從16吋降為9吋5分,上落會更容易及更安全,先鋪英泥地台及做樓梯,後做閣樓地台,用樓梯作桁架支點。










